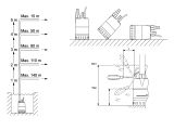
240 В, P1 780 Вт, P2 465 Вт, I 3,5 А, Q max 14 м³/год, Н max 9 м, кабель 10 м, глибина установки до 7 м
Одноступінчастий занурювальний насос для відкачування чистої води
Без поплавка, вилка для підключення до мережі, подвійний випуск, внутрішня різьба 1 1/4", d часток 10 мм
Країна-виробник Угорщина
Артикул 96280969
Гарантія 2 роки
Опис
Насос Grundfos UNILIFT CC9 - M1 96280970 - надійне та вдосконалене рішення для побутового водовідведення, призначене для перекачування господарсько-побутових та підсолених стічних вод від пральних машин, ванн, раковин, колодязів та басейнів. Це насос спеціального виконання, який може перекачувати стічні води із вмістом солей від пом'якшувачів води. Це може бути дощова вода чи побутові стоки без волокнистих включень. Насос здатний перекачувати рідину з твердими частинками діаметром до 10 мм. Щоб працювати під водою тривалий час, насос оснащений кожухом, що охолоджує, і двома випускними патрубками, які можна встановлювати на автоматичну муфту. Завдяки автоматичній системі видалення повітря, насос можна безпечно запускати після періоду простою. Крім того, насос можна використовувати для осушування підвальних приміщень після затоплення
Насос UNILIFT CC9-M1 керується вручну, не комплектується поплавцевим вимикачем. У режимі примусової роботи насос може відкачувати воду до рівня рідини 3 мм (для цього потрібно зняти сітчастий фільтр). Насос можна використовувати як у приміщенні, так і за його межами. Під час роботи по сухому ходу або перевантаженню спрацьовує вбудоване термореле та зупиняє двигун. Після остигання Grundfos UNILIFT CC9 - M1 запускається автоматично
Переваги дренажного насосу UNILIFT CC9-M1
- Перекачує воду з рівня 3 мм
- Захист двигуна від перегріву
- Силовий кабель 10 м з євровилкою
- Два випускні патрубки з можливістю установки на автомуфту
Технічні характеристики Grundfos UNILIFT CC9-M1
- Модель: UNILIFT CC9-A1
- Артикул Grundfos: 96280970
- Країна виробник: Угорщина
- Тип: занурювальний насос для чистої води
- Тип робочого колеса: напіввідкрите
- Без поплавкового вимикача
- Кабель 10 м з вилкою Шуко
- Габаритні розміри: 185х160х342 мм
- Вага нетто: 6,6 кг
- Вага брутто: 7,36 кг
- Гарантія 2 роки
Гідравлічні характеристики
- Номінальна витрата (Q): 1,88 л/с (6,768 м³/год)
- Номінальний тиск (Н): 6,563 м
- Максимальна витрата (Q): 3,89 л/с (14,004 м³/год)
- Максимальний тиск (Н): 9 м
- Діаметр частинок, що перекачуються: 10 мм
- Кількість включень за годину: 20
Матеріали та монтаж
- Матеріал корпусу: Поліпропілен PP-GF15
- Робоче колесо: Композитний матеріал PP 20 GF
- Двигун та вал: Нержавіюча сталь EN 1.4301 AISI 304
- Температура навколишнього середовища: 0..40 °С
- Вихідне з'єднання: Rp 1 1/4"
- Максимальна глибина встановлення: 7 м
- Температура рідини, що перекачується: 0 ... 40 °С
- Щільність рідини: 998,2 кг/м³
Дані з електрики
- Потужність P1: 780 Вт
- Номінальна потужність Р2: 465 Вт
- Номінальна напруга: 1 х 220-240 В, 50 Гц
- Номінальний струм: 3,5 А
- Номінальна швидкість: 2850 об/хв
- Ємність конденсатора 8 мкФ/450 В
- Клас захисту (IEC 34-5): IP68
- Клас ізоляції (IEC 85): F
- Вбудований захист двигуна
- Силовий кабель: H07RN-F 3G1 10 м, вилка з роз'ємом Schuko (євровилка)
Детальніше
- Виробник
- GRUNDFOS
- Потужність, Вт
- 465
- Продуктивність, max м3/год
- 14
- Напір, мах м
- 9
- Напруга живлення, В
- 230
- Діаметр
- DN 32 (1 1/4")
- Матеріал корпусу
- технополімер
- Матеріал робочих колес
- технополімер
- Модель насоса
- Grundfos UNILIFT CC






