Рекомендовані товари
Опис
MLD.32.3.2 Multilift Grundfos 97901112 - каналізаційна насосна станція для збирання та перекачування стічних вод у центральну каналізацію у разі, якщо немає можливості вільного протоку стоків
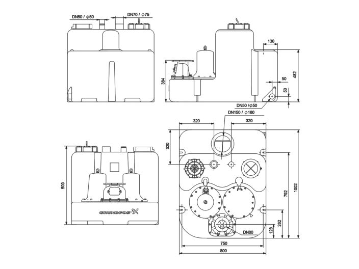
Насосна станція Grundfos MLD Multilift складається з повністю інтегрованого збірного резервуара з двома насосами з робочим колесом Vortex і занурювальними електродвигунами, зворотного клапана з вбудованим Y-подібним патрубком, зливного адаптера з гнучким з'єднувальним елементом DN100, встановленого на збірному резервуарі, датчик рівня. Пластиковий бак-резервуар має 2 впускні патрубки. Головний вхід DN150 на ступінчастому баку та DN50 зверху
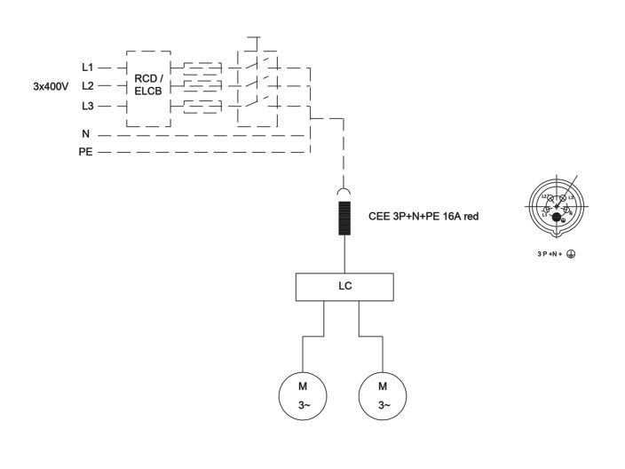
Установка Grundfos Multilift MLD.32.3.2 поставляється з контролером рівня LC 241 для керування та контролю насоса. Контролер здійснює контроль рівня, моніторинг та захист насосної станції. Налаштування контролера можна виконати за допомогою програми Grundfos GO. Він легко інтегрується в лінійку комунікаційних модулів Grundfos, забезпечуючи легке вбудовування в будь-яку систему управління, наприклад, SCADA або Grundfos CLOUD
Насос для каналізації MLD.32.3.2 Multilift розроблений відповідно до стандарту EN12050-1, схвалений та контролюється зовнішнім інститутом LGA. Додаткові сертифікати: VDE, GHOST, CB, EMV
Насосні станції Multilift MLD.32.3.2 можуть перекачувати такі рідини
- побутові стічні води
- забруднені стічні води з фекаліями
- забруднені стічні води з фекаліями та стоки з туалетів
- вода з вмістом мулу
Характеристики насосної станції Grundfos Multilift MLD.32.3.2
- Модель Multilift MLD.32.3.2
- Артикул 97901112
- Бренд Grundfos
- Призначення збирання та відведення побутових стічних вод
- Кількість насосів 2
- Номінальна витрата 19,8 м³/год (5,5 л/с)
- Номінальний тиск 13,9 м
- Максимальний потік 60,12 м³/год (16,7 л/с)
- Максимальний тиск 18,5 м
- Діаметр частинок до 50 мм
- Тип зворотного клапана відкидний клапан
- Бак пластик, LDPE
- Прокладка NBR
- Діапазон температури навколишнього середовища 0 .. 40 °С
- Розмір вихідного з'єднання DN 80
- Номінальний тиск для підключення PN 6
- Діапазон температур рідини 0..40 °С
- Щільність 998,2 кг/м³
- Електродвигун занурювальний з вихровим робочим колесом Vortex
- Вхідна потужність P1 4,0 кВт
- Номінальна потужність P2 3,4 кВт
- Частота мережі 50 Гц
- Номінальна напруга 3х400 В +10/-14%
- Режим роботи повторно-короткочасний S3-50%, 1 хвилина
- Пуск прямий (DOL)
- Кількість запусків годину 60
- Номінальний струм 2 x 6,7 А
- Cos phi коефіцієнт потужності 0,86
- ККД двигуна при повному навантаженні 85,4%
- Кількість полюсів 2
- Клас захисту IP68
- Клас ізоляції F
- Вбудований захист двигуна біметалічний термовимикач
- Довжина кабелю 1,5 м
- Кабель двигуна 10 м
- Тип кабелю H07RN-F
- Роз'єм живлення CEE 3P+N+E
- Мережевий кабель H05VV-F
- Тип блоку керування LC231
- Загальний об'єм резервуару 270 л
- Загальний ефективний об'єм збірного резервуару на вході 180 мм 190 л
- Габарити 800х1002х509 мм
- Вага нетто 136 кг
- Вага брутто 159 кг
Детальніше
- Виробник
- GRUNDFOS
- Потужність, Вт
- 3400
- Продуктивність, max м3/год
- 60
- Напір, мах м
- 18.5
- Об'єм, л
- 270
- Напруга живлення, В
- 400
- Діаметр
- DN 80 (3")
- Застосування
- забруднені стічні води
- Модель насоса
- Grundfos Multilift MLD
6617
97901112







