Поплавковый регулятор Pedrollo TECNO 5
240 В, P1 780 Вт, P2 465 Вт, I 3,5 А, Q max 14 м³/ч, Н max 9 м, кабель 10 м, глубина установки до 7 м
Одноступенчатый погружной насос для откачки чистой воды
Поплавковый выключатель, вилка для подключения к сети, двойной выпуск, внутренняя резьба 1 1/4", d частиц 10 мм
Страна-производитель Венгрия
Артикул 96280970
Гарантия 2 года
Описание
Насос Grundfos UNILIFT CC9 - A1 96280970 - надёжное и усовершенствованное решение для бытового водоотведения, предназначенное для перекачивания хозяйственно-бытовых и подсоленных сточных вод от стиральных машин, ванн, раковин, колодцев и бассейнов. Это насос специального исполнения, который может перекачивать сточные воды с содержанием солей от смягчителей воды. Это может быть дождевая вода или бытовые стоки без волокнистых включений. Насос способен перекачивать жидкость с твёрдыми частицами диаметром до 10 мм. Чтобы работать под водой длительное время, насос оснащен охлаждающим кожухом и двумя выпускными патрубками, которые можно устанавливать на автоматическую муфту. Благодаря автоматической системе удаления воздуха насос можно безопасно запускать после периода простоя. Кроме того, насос можно использовать для осушки подвальных помещений после затопления
Насос UNILIFT CC9-A1 может управляться как вручную, так и автоматически при помощи поплавкового выключателя. Поплавок обеспечивает автоматический запуск и остановку насоса. В режиме принудительной работы насос может откачивать воду до уровня жидкости 3 мм (для этого нужно снять сетчатый фильтр). Насос можно использовать как в помещении, так и за его пределами. При работе по сухому ходу или перегрузке срабатывает встроенное термореле и останавливает двигатель. После остывания Grundfos UNILIFT CC9 - A1 запускается автоматически
Преимущества дренажного насоса UNILIFT CC9-A1
- Перекачивает воду с уровня 3 мм
- Защита двигателя от перегрева
- Силовой кабель 10 м с евровилкой
- Два выпускных патрубка с возможностью установки на автомуфту
Технические характеристики Grundfos UNILIFT CC9-A1
- Модель: UNILIFT CC9-A1
- Артикул Grundfos: 96280970
- Страна-производитель: Венгрия
- Тип: погружной насос для чистой воды
- Тип рабочего колеса: полуоткрытое
- С поплавковым выключателем
- Кабель 10 м с вилкой Шуко
- Габаритные размеры: 185х160х342 мм
- Вес нетто: 6,79 кг
- Вес брутто: 7,55 кг
- Гарантия 2 года
Гидравлические характеристики
- Номинальный расход (Q): 1,88 л/с (6,768 м³/ч)
- Номинальный напор (Н): 6,563 м
- Максимальный расход (Q): 3,89 л/с (14,004 м³/ч)
- Максимальный напор (Н): 9 м
- Диаметр перекачиваемых частиц: 10 мм
- Количество включений в час: 20
Материалы и монтаж
- Материал корпуса: Полипропилен PP - GF15
- Рабочее колесо: Композитный материал PP 20 GF
- Двигатель и вал: Нержавеющая сталь EN 1.4301 AISI 304
- Температура окружающей среды: 0 .. 40 °С
- Выходное соединение: Rp 1 1/4"
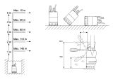
- Максимальная глубина установки: 7 м
- Температура перекачиваемой жидкости: 0 ... 40 °С
- Плотность жидкости: 998,2 кг/м³
Данные по электричеству
- Потребляемая мощность P1: 780 Вт
- Номинальная мощность Р2: 465 Вт
- Номинальное напряжение: 1 х 220-240 В, 50 Гц
- Номинальный ток: 3,5 А
- Номинальная скорость: 2850 об/мин
- Ёмкость конденсатора 8 мкФ/450 В
- Класс защиты (IEC 34-5): IP68
- Класс изоляции (IEC 85): F
- Встроенная защита двигателя
- Силовой кабель: H07RN-F 3G1 10 м, вилка с разъёмом Schuko (евровилка)
Подробнее о товаре
- Производитель
- GRUNDFOS
- Мощность, Вт
- 465
- Производительность, max м3/ч
- 14
- Напор, мах м
- 9
- Тип исполнения
- с поплавковым выключателем
- Напряжение питания, В
- 230
- Диаметр
- DN 32 (1 1/4")
- Материал корпуса
- технополимер
- Материал рабочих колес
- технополимер
- Модель насоса
- Grundfos UNILIFT CC







